Caracteristicas
- Sup cubierta (m2) 53
- Tipo propiedad: Departamento
- Precio: USD 76.440
- Ubicacion: Pilar Centro
- ID de propiedad: 10654
- Responsable profesional: Attili María Virginia Matrícula 5077 MCPSI
Descripcion
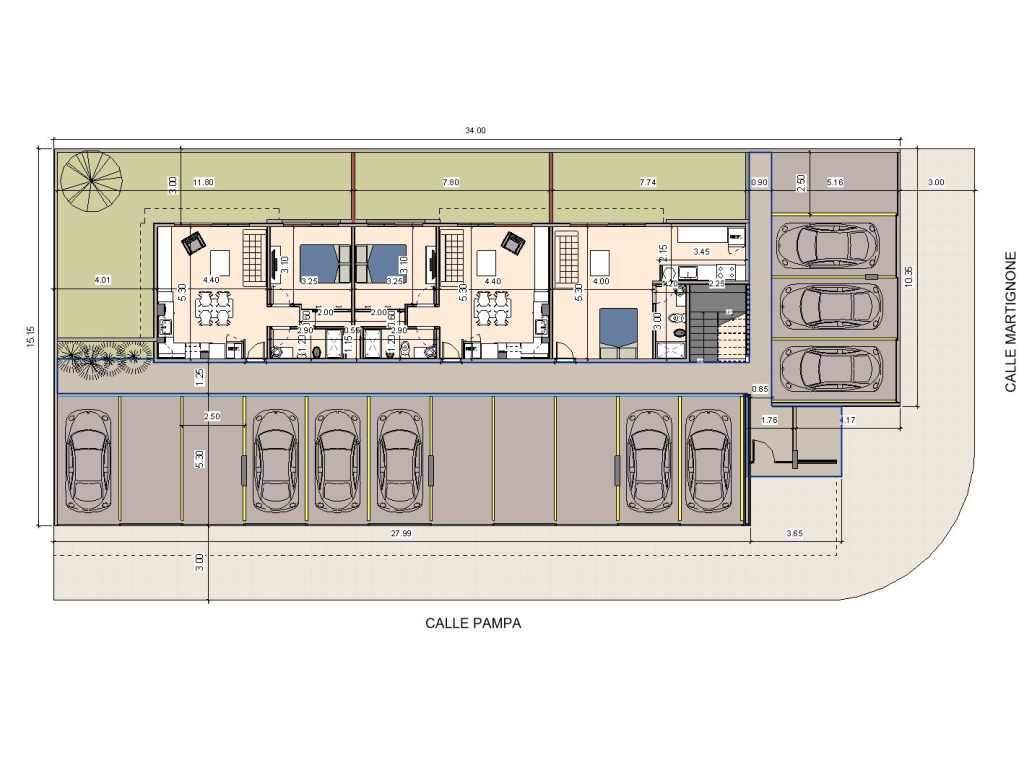
E D I F I C I O P A M P A
Complejo Residencial Multifamiliar
2DO. PISO
DEPARTAMENTO 15
2 AMBIENTES (Grande) con Cochera Descubierta
53m2 Cubiertos
10m2 Balcón
Estar Comedor Cocina, Baño, 1 Dormitorio
°Calidad en construcción sustentable, amigable con el Medio ambiente y de alta confortabilidad.
° Ubicado a metros del centro de Pilar, con frente a la calle PAMPA haciendo esquina con la calle MARTIGNONE.
° Edificio de 3 plantas, con 15 Unidades de Departamentos Monoambientes y Dos Ambientes, cada uno con su respectiva Cocheras.
° Gran Salón de Usos Múltiples (SUM) con sector de Parrilla, baños y terraza transitable total 310m2.
° Equipamiento de Departamentos:
- Excelente luminosidad en todas la unidades.
- Climatización por equipos de AA splits frio/ calor en cada ambiente.
- Cocina: Mesadas de Granito, muebles de cocina (Incluye bajo mesada y alacena)
- Artefacto de cocina con horno.
- Extractor de aire.
- Termotanque a Gas.
- Espacio lavarropas y heladera.
- Artefactos de iluminación Led incluidos.
- Griferías FV modelo California o similar.
- Pisos cerámicos.
- Sanitarios modelo Mónaco de Roca.
- Frente de Placar - No incluye Interior.
° Principales Características:
- Muro verde en dos fachadas y las dos restantes con balcones
- En Planta baja están las cocheras de acceso directo individual con reja y tres departamentos con patio.
- El primer y segundo piso son plantas iguales con acceso via escalera con 6 departamentos por planta.
- Tipología de construcción de alta eficiencia energética (Nivel A), diseño bioclimático.
- Frente, portones de reja individuales, sobre el perímetro de acceso vehicular y hall con puerta de acceso peatonal.
- Recepción, hall de ingreso con acceso a cocheras y a escalera.
- Fácil acceso a personas con capacidades diferentes.
- Ventanas de la línea rotonda con óptima hermeticidad, aislación acústica y térmica DVH (Doble vidrio hermetico).
- Persianas de Enrollar.
- Pisos de Porcelanato en espacios y áreas comunes.
- Balcón con estructura y barandas de hierro.
- Recuperación de agua de lluvias para utilización en sectores comunes.
¨La venta de estos inmueble está sujeta a la tramitación del Código de Transferencia de Inmuebles (COTI) de conformidad con la normativa vigente (res AFIP 2371/08, 2439/08 y ccs) por parte del propietario.¨










