Caracteristicas
- Sup terreno (m2) 4625
- Tipo propiedad: Lote
- Precio: USD 570.000
- Ubicacion: Villa Alpina I
- ID de propiedad: 11037
- Responsable profesional: Attili María Virginia Matrícula 5077 MCPSI
Descripcion
Venta de Instalaciones Club + Propiedad. Apto Proyecto Inmobiliario Aprobado
Exclusivo club de tenis con propiedad e infraestructura consolidada, fundado en Octubre de 2008, es reconocido como uno de los clubes con las mejores canchas de tenis de la zona.
Ubicado estratégicamente en la localidad de Pilar a solo 100 metros de Panamericana km 55.500 Ramal Pilar y sobre Ruta Provincial N° 8, ofrece una combinación ideal de ubicación, infraestructura y oportunidad de negocio.
Instalaciones y Servicios
El predio es una única fracción con una superficie 4.625m2 con 4 canchas de tenis de polvo de ladrillo, iluminadas para juego nocturno.
Amplios espacios verdes, ideales para expansión o futuras instalaciones. Cuenta con un sector exclusivo de 220m2 cerrados en dos plantas.
En planta baja hay una recepción con oficina y pro-shop, bar para 40 personas con cocina equipada y vestuarios completos con duchas presurizadas. En planta alta hay una recepción, 2 box/ gabinetes y 1 baño privado, donde actualmente funcionan consultorios cosmetológicos. ¡Ideal para sumar otros servicios o alquilarlo de manera independiente para ingresos adicionales!
El Club se encuentra en pleno funcionamiento!
Infraestructura completa, ingresos consolidados y potencial de crecimiento mediante la expansión de servicios e instalaciones para maximizar su inversión.
Actualmente opera con una base sólida de clientes y una reputación consolidada en la zona.
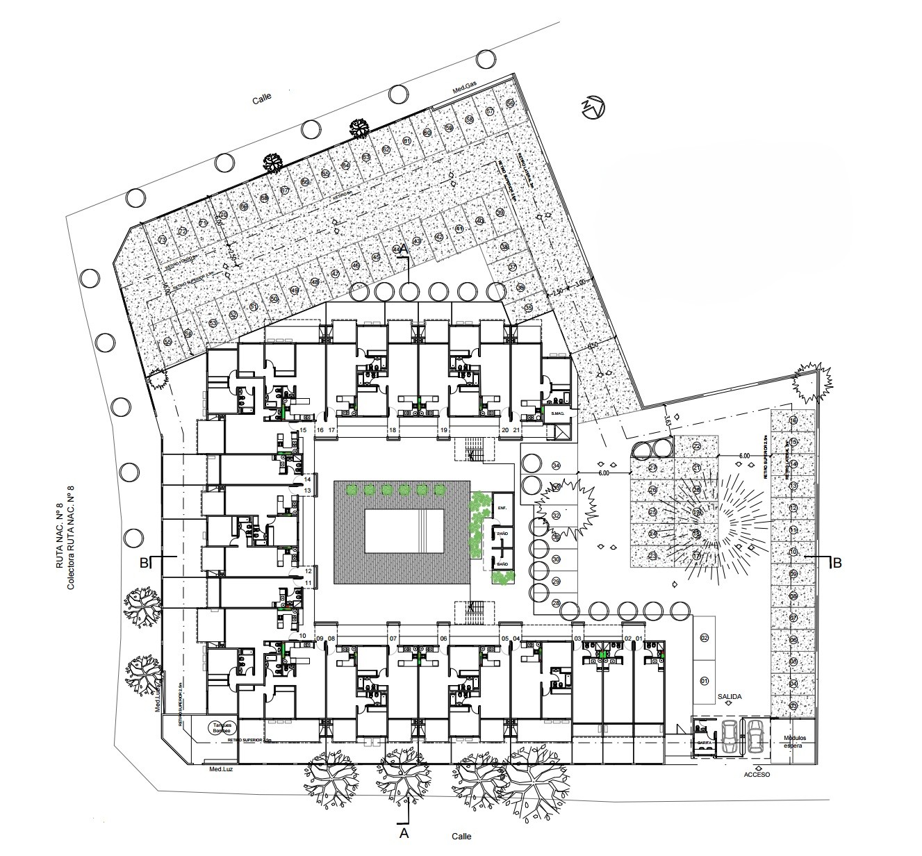
Apto Proyecto Inmobiliario – Condominio
Pre-Factibilidad aprobada en enero 2025 por Planeamiento Urbano del partido de Pilar, para la construcción de un complejo habitacional cerrado de 63 unidades funcionales a desarrollar en tres plantas con un total de 3.800m2 vendibles y 4.200m2 construibles, con 70 cocheras, piscina y acceso con garita de seguridad.
Lote sobre 3 frentes de 70mts; 75mts y 50mts a tres calles.
Servicios Existentes: Edenor con Trifásica y tarifa 2; Agua potable Aysa con servicio no medido; Agua de pozo con bomba sumergible y Gas natural Naturgy.
Nota: Los servicios de Edenor y Naturgy han dado su factibilidad técnica por escrito al proyecto. (Faltante de Cloca a comunicar).
Para interiorizarse y obtener mayor información, por favor coordinar una entrevista con nosotros al +549 1150586476 o al +549 1149867712.-















